12 & 14 Cherry Street, Lower Units, St. Catharines, ON

Richly detailed and filled with light, these unique residences offer all of the gracious conveniences of modern living within a beautifully historic neighbourhood. A mix of original architecture, and cutting edge interior design, set a scene and tell a story—while leaving room for you to write your own. Available for occupancy as early as April 1, 2024.

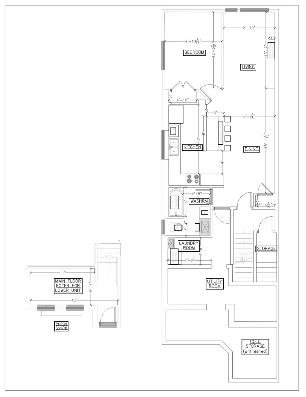
685 sq ft

-

1 bed, 1 bath

$1,730 / month

-

Built in 2023

  • Spacious ground level entry foyer / sunroom, with a windowed view to Cherry Street, and stairwell to the lower-level unit.

  • Open concept floor layout featuring well-appointed kitchen with island eating bar, quartz countertops, stainless steel appliances (fridge, stove, dishwasher, microwave / exhaust hood), dining and living area with electric fireplace and windowed view to the rear yard.

  • 1 primary bedroom with 5’ x 2’ closet.

  • Bathroom with quartz vanity top, tub / shower, and linen cabinet.

  •  Laundry room with stacked washer / dryer and laundry tub.

  • Access to 65 square foot utility room and 130 square foot cold storage.

  • Dedicated use of 12’ long x 6’ deep exterior front porch.

  • Heating, ventilation and cooling system featuring forced air gas furnace, on demand gas hot water system, HRV air exchanger, and central air conditioning.

  • Venetian blind window treatments.

  • * Note – rental amount excludes utilities, water heater rental, and metered water usage. The property and premises, indoors and outdoors, are strictly non-smoking / non-vaping.

Amenities


Interested?